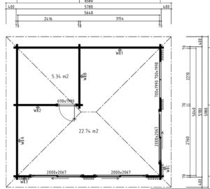
Sauna Tommy 70B
- Includes a ceiling insulation set (insulation board, thermal insulation tape, alder paneling)
- 70 mm thick solid wood walls
- 28 mm thick tongue-and-groove floorboards
- Extra strong roof construction – suitable for heavy snow loads and strong winds
- 5.32 m² sauna room
- 22.76 m² anteroom
- Double-glazed window set
- 1x openable double-glazed window
- 3x glass sliding windows/doors
- 1x tempered bronze glass sauna room door
- High-quality 2400 mm alder wood sauna benches
- Premium alder wood backrest
- High-quality mounting materials and assembly instructions
- Without sauna heater (available as an optional accessory)
- Black EDPM roofing available as an option!
SINGLE ROOM SAUNAS
2-ROOM SAUNAS
BARREL SAUNAS
SAUNA CABINS
HEATERS 
