Sauna Kate 44
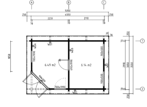
- Base floor dimensions: 4540×3040 mm
- Eaves height: 2.3 m
- Includes ceiling insulation kit (insulation board, thermal insulation tape, alder paneling)
- Option for 44 mm or 70 mm thick solid wood walls
- 28 mm thick tongue-and-groove floorboards
- 6.49 m² anteroom
- 6.14 m² sauna room
- 2x 900 mm wide opening windows with tempered double glazing in the sauna room
- 3x windows made of double glazing
- 1x exterior door made of double glazing in the front facade
- 1x sauna room door made of tempered bronze glass
- High-quality alder wood sauna benches (400–600 mm)
- High-quality alder wood backrest
- High-quality fastening materials and assembly plan
- Without sauna heater (available as an optional accessory)
- Black EDPM roof covering available as an optional extra!
SINGLE ROOM SAUNAS
2-ROOM SAUNAS
BARREL SAUNAS
SAUNA CABINS
HEATERS 



